Stilsouffleuse - raum und räume zum wohlfühlen
  • welcome
  • info
    • über stilsouffleuse  |  service & leistungen
  • lookbook
    • projekte
  • workshop
    • inhalt & termine  |  agb
  • Kontakt
  • Impressum
Privaträume Geschäftsräume & öffentliche Bauten Interior Planung TV-Shows Tapetendesign Möbel & Produktdesign Ausstellungen & Messen
01 I 02 I 03 I 04 I 05 I 06 I 07 I 08 I 09 I 10
11 I 12 I 13 I 14 I 15
Ausstellungsplanung "Perlen vor die Säue - Tapeten & Mode, Showroom Joah Kraus Köln"
Plakat zur Ausstellung.
Ausstellungsplanung "Perlen vor die Säue - Tapeten & Mode, Showroom Joah Kraus Köln"
Wandgestaltung mit Single-Tapeten Bordüre "PlayBoys".
Ausstellungsplanung "Perlen vor die Säue - Tapeten & Mode, Showroom Joah Kraus Köln"
Freie Aufhängung verschiedener Musterbahnen.
Ausstellungsplanung "Perlen vor die Säue - Tapeten & Mode, Showroom Joah Kraus Köln"
Mittelzone Ausstellungsraum.
Ausstellungsplanung "Perlen vor die Säue - Tapeten & Mode, Showroom Joah Kraus Köln"
Eingangsbereich.
Ausstellungsplanung "Perlen vor die Säue - Tapeten & Mode, Showroom Joah Kraus Köln"
Wandgestaltung mit Tapete "Mauerblümchen".
Planung & Organisation der Ausstellung "Single-Tapete", Passagen Köln
Implementierung einer fiktiven Wohnung für eine Woche in einem Ladengeschäft im Belgischen Viertel. In den verschiedenen Bereichen der "Wohnung" werden die "Single-Tapeten" präsentiert. Hier das Wohnzimmer.
Planung & Organisation der Ausstellung "Single-Tapete", Passagen Köln
Möbliert wurde die Wohnung fast ausschließlich mit freundlicher Leihgabe von Ikea Köln.
Planung & Organisation der Ausstellung "Single-Tapete", Passagen Köln
Single-Tapete "Barbara C." im Schlafbereich.
Planung & Organisation der Ausstellung "Single-Tapete", Passagen Köln
Kommunikationsbereich Essen - Lesung mit Claudia Röhnelt vor der Single-Tapete "Paul".
Planung & Organisation der Ausstellung "Single-Tapete", Passagen Köln
Grundriss Ausstellung.
Planung Hausmesse, Villeroy & Boch Fliesen GmbH
Gestaltung der "Highlight" Kojen, im Bild Serie "Bianconero floral weiss".
Planung Hausmesse, Villeroy & Boch Fliesen GmbH
Auszug Verlegeplan mit "Bianconero floral" in Farbe weiss.
Planung Hausmesse, Villeroy & Boch Fliesen GmbH
Gestaltung der "Highlight" Kojen, im Bild Serie "Bianconero kristallin schwarz".
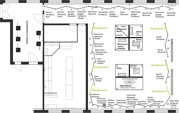
Planung Hausmesse, Villeroy & Boch Fliesen GmbH
Grundriss zur Planung der internen Hausmesse zur Vorstellung der Fliesen-Neuheiten.